Generelle informationer:
Projekt: Integreret Daginstitution
Beliggenhed: Tjæreborg
Studerende: Simion Popa
Skole: Erhvervsakademi Sydvest Esbjerg / Bygningskonstruktør
Projekterings faser: Fra ideoplæg til hovedprojekt
Tid: 567 timer
Granskning: BR15, Lokalplan 12-010-0001, Ydelsesbeskrivelsen 2012, Energikrav 2015
Programmer: Revit, MEP, Be15, MS Projekt, Sigma Enterprise, Adobe Photoshop
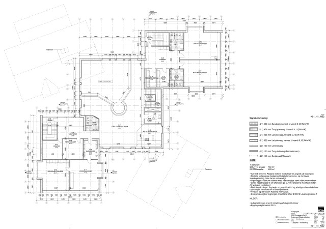
Som bygningskonstruktør studerende har jeg på 7. semester valgt, i mit afgangsprojekt, at granske og projektere en moderne integreret daginstitution bestående af flere sammensatte bygninger.
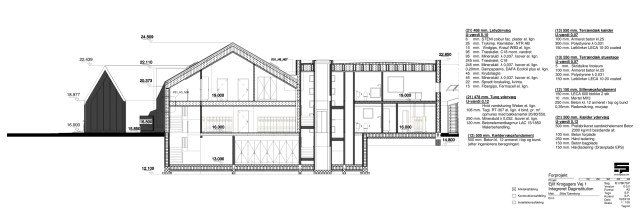
Daginstitutionen er opført i to etager + kælder. I kælderen er der teknikum + div. opbevaringsrum. Stueetagen er indrettet med en central bygning hvor der er fællesarealer. I tæt forbindelsen med den centrale bygning er der placeret fire moduler. Et modul til vuggestue og 3 moduler til børnehave. Første sal er udført efter det samme princip, med fællesarealer i den centrale bygning og to af de fire moduler er beregnet til personalerum og kreativ/motorik zone.
Min vision bagved dette projekt var at skabe et univers for børn fra 0 år til skolealder, hvor der er taget udgangspunkt i et ønske om at skabe trygge, inspirerende og ikke mindst farverige rammer for børnenes hverdag.
Jeg har udvalgt nogle tegninger og dokumenter/beregninger som kan give et indtryk af mit projekt.













