Velkommen til mit tværfagligt projekt som er udarbejdet på 3. semester som bygningskonstruktør studerende.
Generel information:
Gruppe projekt: Industribyggeri (element byggeri)
Beliggenhed: Storstrømsvej 12, 6715 Esbjerg
Studerende: Simion Popa & Andreas Ladefoged
Skole: Erhvervsakademi Sydvest Esbjerg / Bygningskonstruktør
Start projekt dato: 31.08.2015
Slut projekt dato: 14.12.2015
Projekterings faser: Projektforslag – Forprojekt – Hovedprojekt – Elementprojekt
Granskning: BR 10, Lokalplan nr. 242, Ydelsesbeskrivelsen 2012, Energikrav 2015, Eksempelsamling om brandsikring 2012 og forskelige SBI og DS’er.
Software: Revit, MEP, MS Projekt, Sigma Enterprise, ArchiCAD 16, Artlantis Studio 4, Adobe Photoshop og AutoCad (lidt).
Rendering af projektet lavet i Artlantis og lidt edit i Photoshop.

Håndtegning/koncept

Vi blevet stillet til opgave at projektere industribyggeri hvor der skulle være en administration og en produktionsbygning med tilhørende lager.
Fokus på dette semester var at lære at projektere element byggeri, derfor valgte vi at projektere produktionshallen i beton elementer og administrationsbygning i let træ elementer.
De første 2 projekteringsfase arbejdede vi som gruppe i centralfil Revit, hvor resten af projektet blev udarbejdet individuelt.
Beliggenhedsplan 1:1000

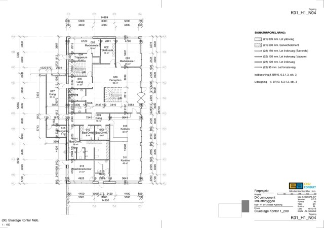
Stueetageplan kontor 1:150

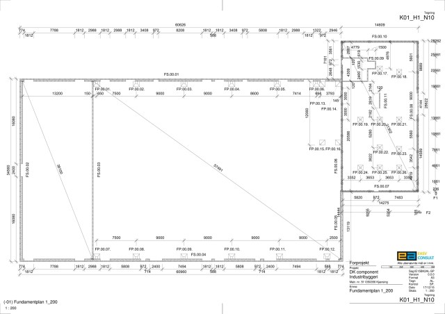
Fundamentplan 1:200

Træ dækelementplan kontor 1:100

Tværsnit kontor 1:100

Håndtegning detalje murkrone.

Detalje let element – murkrone 1:10

Detalje let element – dæk 1:5

Træelement – element produktion

Dimensionering af brugsvandsanlæg

MEP – kloak plan

Personlig tidsplan – ganttdiagram

Rendering af projektet lavet i Artlantis og Photoshop.
