Generel information om projektet:
Gruppe projekt: Beboerhus med overnatning / 2. semester
Beliggenhed: Sønderparken, 6740 Bramming
Studerende: Simion Popa & Andreas Ladefoged
Skole: Erhvervsakademi Sydvest Esbjerg / Bygningskonstruktør
Start dato: 02.02.2015
Slut dato: 23.06.2015
Granskning: BR 10, Lokalplan 21-020-0001, Energikrav 2015, Ydelsesbeskrivelsen 2012, Eksempelsamling om brandsikring 2012, SBI 185, DS 432, DS 418, BIPS.
Software: Revit, MEP, MS Projekt, Sigma Enterprise, ArchiCAD 16, Artlantis Studio 4, Adobe Photoshop.
Projektforslaget
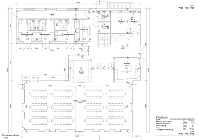
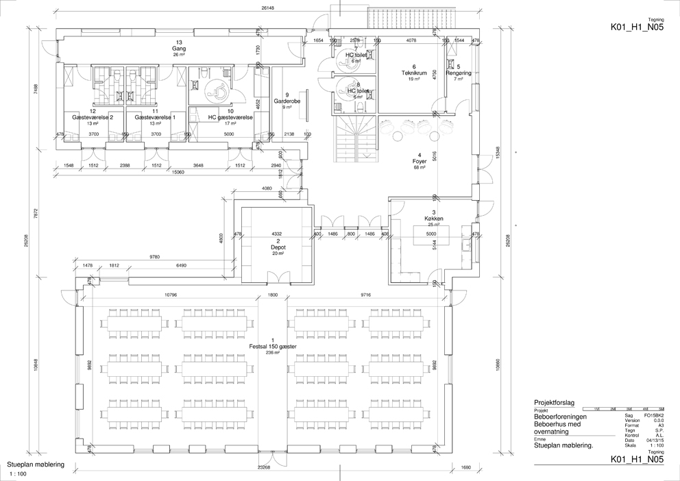
Vi blev stillet til opgave at projektere et fælles hus i Bramming, hvor der skule være en festsale til 150 gæster og 3 overnatnings muligheder, hvor af 1 skulle være handicap venlig. Vi var igennem nogle forskelige projekterings faser, først en projektforslags fase hvor vi var en gruppe på 2 personer og en forprojekts fasen hvor jeg var selv.
Vi startede projektet med at tegne nogle hånd tegninger i projektforslaget for at kunne få vist buggeherren hvordan huset ville komme til at se ud. Bagefter begyndte vi at tegne i centralfil i Revit for at kommer mere seriøs i gang med projektet og implementere de fordele ved det at arbejde som gruppe i centralfil.
I projektforslaget lavede vi en tidsplan for bedre at kunne budgettere med tiden og får overblik over hvor lang tid hele opgaven ville tage.
Her begyndte vi at lave nogle statisk analyse for at se hvordan kræfterne og lasterne overføres igennem byggeriet.
Forprojekt
I forprojekt fasen, kendt som myndigheders projekt, blev vores gruppe delt og vi skulle forsætte projektet individuelt.
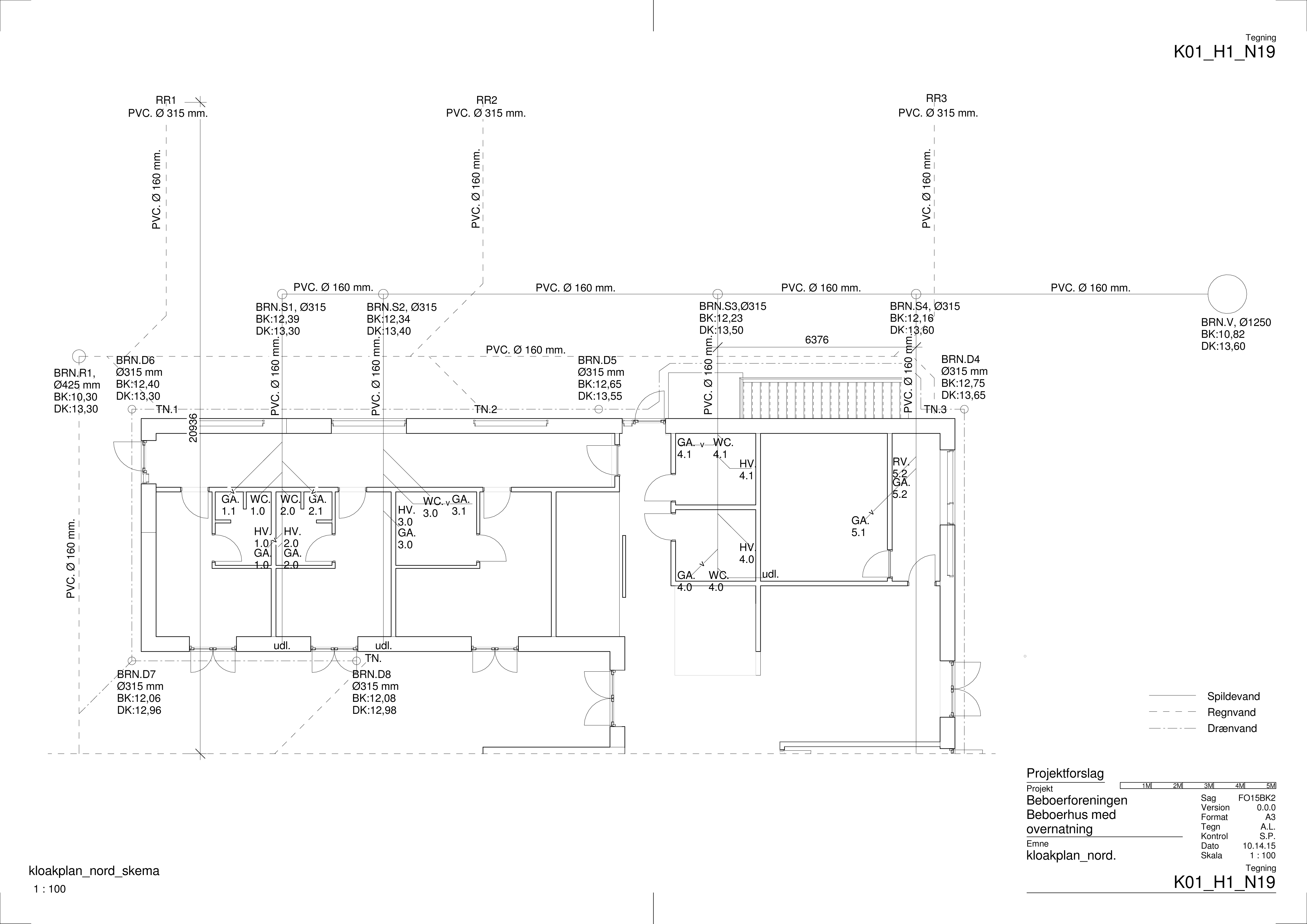
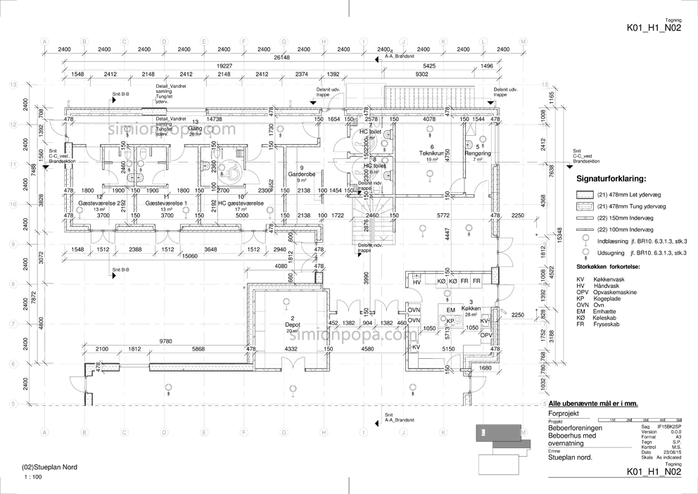
Detaljegraden på tegningerne i forprojektet er lidt højere. Skravering på detalje tegningerne er blevet udarbejdet ud fra BIPS Tegningsstandarder C213.
Overslagsprisen til byggeherren, blev lavet ved at udtrække mængderne fra Revit over i Sigma. Her i forprojektet har jeg også lavet nogle dimensioneringer og beregninger på forskelige konstruktioner. Eksempel er lavet på en limtræs bjælke.


















